









Via Cadore, Milan
0 bedrooms
38m2
0 bathroom
4 people
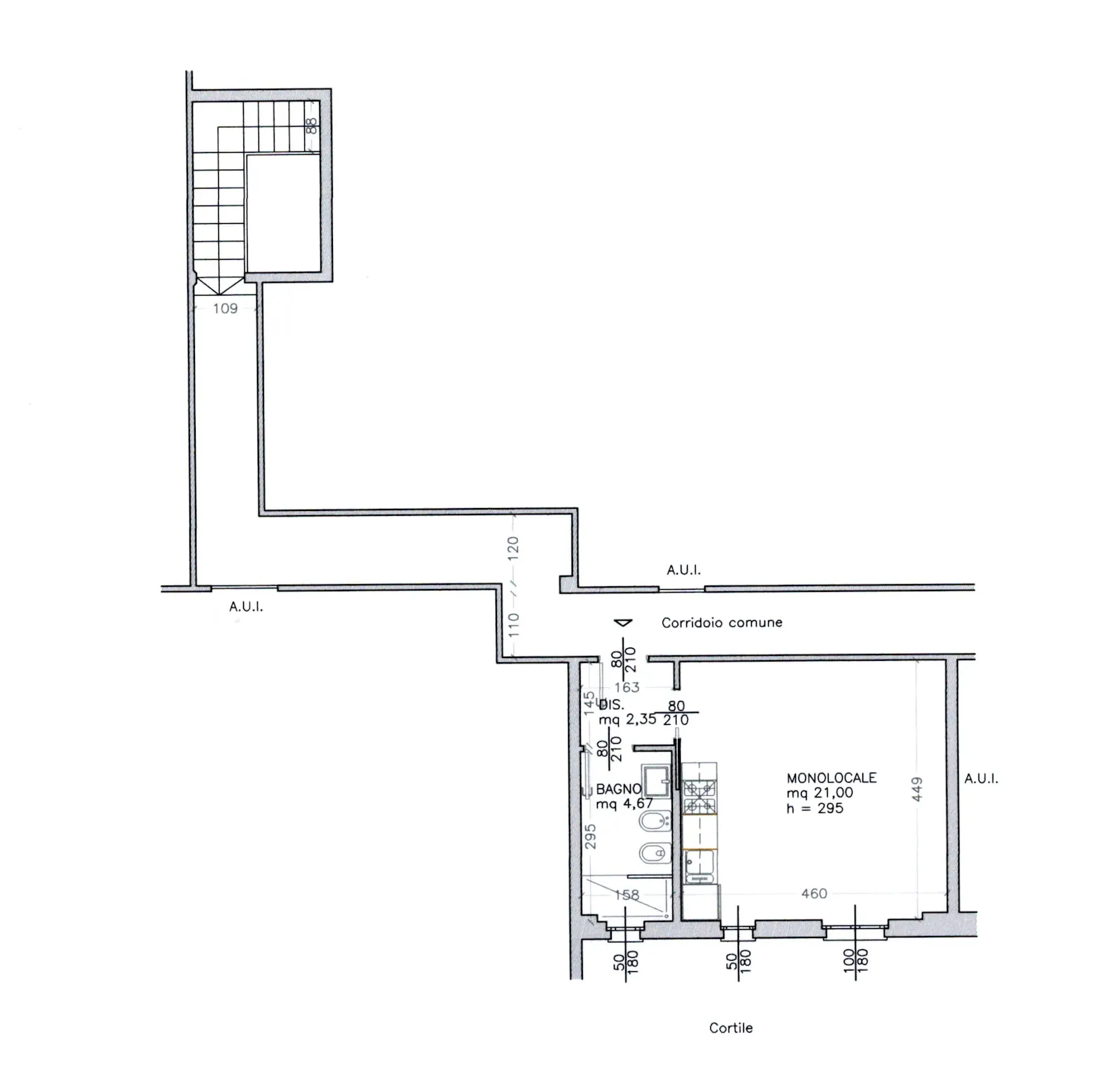
This studio apartment, located at Via Cadore 2 in Milan, is designed to optimize space while offering comfort and functionality. Upon entering, on the right, there is a large pull-down bed that can be easily lowered to provide a comfortable sleeping area. Next to the bed, a bunk bed takes advantage of the room's height, providing additional sleeping spaces without taking up floor space.
The kitchen area is well-equipped with a compact cooking zone, including a stove, refrigerator, and a small work surface. Wall-mounted cabinets allow for keeping dishes and utensils organized, while a small table or counter can serve as a dining area.
The bathroom is modern and spacious, with a large shower offering ample space for optimal comfort. The modern finishes and functional fixtures, along with stylish sanitaryware, complete this cozy and functional space. The entire studio is tastefully furnished, making the most of every inch to create a practical and welcoming atmosphere. Its central location at Via Cadore 2 offers the advantage of being close to Milan's main attractions, with excellent public transport links and nearby services.
RENTAL CONDITION:
- One-time agency fee: it covers the registration of the contract and all the bureaucratic practices related to that.
- The monthly rent includes 50€ electricity and gas utilities for studios, 75€ for 1-bedroom apartments, and 100€ for 2-bedroom apartments or more. The extra cost for electricity and gas has to be paid by the tenant upon consumption.
- We will provide you with a registered contract and the contract translated into English.
- For an extra cost of 80 euros per person you can request a set of towels and bed linen.
- One-time final cleaning fee: for a studio is € 150 (VAT included), for a one-bedroom apartment is € 200 (VAT included), and for a 2-bedroom apartment is € 250 (VAT included).
- Check-in & Check-out outside of working hours are to be paid, the amount may change accordingly to the day and time.
- Contracts can be terminated with 90 days of early notice and no penalty. If the early notice is inferior the landlord has the right by law to ask for 90 days of rent.
If you would like to reserve this accommodation, send me a booking request or a message and please mention your age and occupation. I look forward to meeting you!
Amenities
Air conditioning
Desk
Dish washer
Washing Machine
Rules
Pets not allowed
Smoking not allowed
Events not allowed
Not suitable for families with children
Children not allowed
Infants not allowed
Cancellation Policy
You can cancel the reservation for free within 30 days before moving.
Frequently asked questions for this offer
What happens after I make a reservation?
Once you send a reservation request, the landlord is notified that you are interested in their offer. From that moment, they have 24 hours to approve or reject your reservation.
Landlords are mainly interested in the profile of their tenant. Do not forget to fill in all necessary information, add your profile picture, or even make a short video about yourself. Doing that will make you more attractive for the owner and your reservation will more likely get approved.
What is the standard furnishing of flats?
All the apartments on offer on HousingAnywhere must meet certain standards. We require fully furnished and equipped ones, dishes, cutlery and internet connection included.
What is a medium-term rent?
The duration of a medium-term rent is usually 1 to 12 months. Most of the landlords offer long-term rents or rents for just a few days, therefore getting a medium-term rent without HousingAnywhere is not that easy.
Can I go through the contract before I make a reservation of the housing?
You can take a look at the contract in advance and online with every offer. After you sign it, you will find it in the application My Housing.
While arranging a contract on HousingAnywhere, you do not have to worry that it could be disadvantageous for you. Our contracts are made so that we avoid all problems! All of them are the same, used by all the landlords on HousingAnywhere.
Can I see my chosen accommodation in person before I sign the lease agreement?
Your time is precious. That's why we've added a virtual tour option to our platform so you can see some of the rentals listed on HousingAnywhere from the comfort of your own home.
If a virtual tour isn't available for the accommodation you've chosen, you can contact the landlord and ask them if they're willing to give you a personal tour of the rental unit.
If you move in and find that the rented accommodation doesn't match the information on HousingAnywhere at the time the reservation request was sent to the landlord, you can withdraw from the lease agreement under certain circumstances explained in this article in our help center.
Also, under our "secure move-in" policy, we'll assist you with moving to an alternative accommodation if you report within a certain period of time that the rental unit doesn't match the ad and the landlord doesn't fix the problem immediately. You can read the details in our help center.
How can I pay?
On HousingAnywhere, you have a variety of payment methods to choose from. You can use your card, payment gateway or bank transfer. Just pick the one which suits you the most.
How can I cancel my reservation?
How you can cancel a reservation varies depending on what stage the reservation is in.
Is your reservation request still waiting for landlord approval? Then you can simply cancel it directly from your My Housing web app!
However, suppose the owner has already approved your reservation request, and you are no longer interested in it. In that case, you can still cancel the reservation before you sign the lease agreement. Just consider that you should do this only in essential cases. Because when the landlord accepts your reservation, their property is stopped being advertised, and they can lose the chance to rent their property to someone else.
Do you have an approved reservation and also a valid agreement? In order to cancel your reservation, contact HousingAnywhere customer support well in advance of your contract beginning (the specific time and amount of refund depends on the type of cancelation policy).